Home Agent Ingatlaniroda

Győr (Likócs)

ID: 326052

Leírás

Győr–Likócson, csendes zöldövezeti környezetben, új építésű lakóparkban eladó egy igényes kivitelezésű, kétszintes sorház saját kerttel és garázzsal.

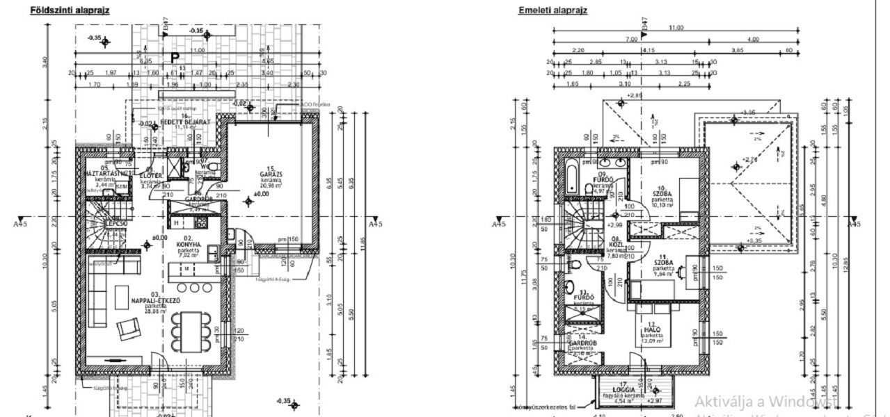
A modern megjelenésű, lapostetős családi ház alapterülete 146 m², a hozzá tartozó telek 422 m². A dél–nyugati tájolásnak és az átgondolt tervezésnek köszönhetően világos, élhető terekkel rendelkezik, ahol az emeleti privát élettér jól elkülönül a földszinti közösségi résztől.

Műszaki jellemzők:

-30 cm vastag tégla tartófalak
-20 cm Austrotherm grafit hőszigetelés
-modern hőszivattyús fűtés padlófűtéssel, klímás hűtés
-háromrétegű, hőszigetelt műanyag nyílászárók automata szellőzővel
-tereprendezett udvar

A saját kert ideális hely a pihenésre vagy családi programokra, a zárt garázs pedig kényelmes parkolást biztosít.

Autópálya, iskola, óvoda, bolt és buszmegálló a közelben található. Likócs Győr egyik legdinamikusabban fejlődő városrésze, amely nyugodt lakókörnyezetet kínál kiváló infrastruktúrával.

Kulcsrakész ár: 182,9 millió Ft, amely a képeken látható teljes berendezést is tartalmazza.

Tulajdonságok

Ár
182.900.000 Ft
Település
Győr
Településrész
Likócs
Tranzakció típusa
Eladó
Ingatlan típusa
Ház / Családi ház
Alapterület
146 m2
Szobaszám
4
CSOK PLUSZ
Igen
3% támogatásra jogosult
Igen
Építés éve
2025
Költözhető
azonnal
Szerkezet
Tégla ház
Telek terület
422 m2
Állapot
Újépítésű
Komfort
Luxus
Szintek száma az épületben
2 szintes
Fűtés
Hőszivattyú
Belmagasság
3 méter alatt
Wc és fürdőszoba
Külön is egyben is
Erkély
Igen
Erkély mérete
5 m2
Akadálymentesített
Igen
Kilátás
Udvarra néző, Utcára néző
Tájolás
délnyugat
Parkolás
1 állásos garázs
Parkolás benne van az árban
Igen
Extrák
Légkondicionáló, Riasztó, Amerikai konyhás, Alacsony rezsi, Terasz

Kapcsolat

Drobilits-Balogh Diána
Drobilits-Balogh Diána
Értékesítő
Üzenetküldés

Elfogadom az adatvédelmi tájékoztatót.

Adatkezelési hozzájáruló nyilatkozat



Jelen űrlap kitöltésével kifejezett hozzájárulásomat adom ahhoz, hogy a fentiekben általam önkéntesen szolgáltatott személyes adataimat Home Agent Ingatlaniroda, mint adatkezelő kezelje a hozzájárulásom visszavonásáig, abból a célból, hogy ingatlan eladás, vagy vásárlás céljából ajánlatokat juttasson el számomra.

A kapott e-mail mindig tartalmaz leiratkozásra szolgáló linket.